Kennzeichen verloren? So verhalten Sie sich richtig
Von unserer Partner-Fahrschule Eggerl: Das Verkehrsthema der Woche (272)
Von unserer Partner-Fahrschule Eggerl: Das Verkehrsthema der Woche (272)
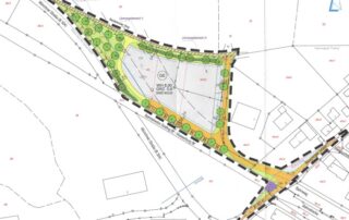
Änderung des Bebauungsplans zu „Forsting-Nord" gestern im Gemeinderat Pfaffing beschlossen
AK68 darf zwei Banner am ehemaligen Gebäude der Polizeiinspektion Wasserburg anbringen
Rotter Feuerwehr und seine ehrenamtlich Aktiven mit riesigem Leistungspensum - Eine Bilanz
MdL Sepp Lausch und Bundestagskandidat Sepp Hofer gratulieren Nepomuk Poschenrieder
Bauausschuss bewilligt Neubau zweier Gebäude für Personalwohnungen im Inn-Salzach-Klinikum
Zweimal zwei Karten für spielerischen Pistenspaß am Sudelfeld waren zu gewinnen
Wechselbetrug in Supermärkten in Halfing, Amerang und Bad Endorf von der Polizei aufgeklärt
Neues Anmeldeverfahren am Online-Portal der Bundesagentur für Arbeit
Förderverein für Kinder und Jugendliche lädt zur Faschingsparty im Krippnerhaus ein
Zwei beliebte regionale Getränkemarken bündeln ihre Kräfte: Wolfra und WINZZ gehen gemeinsame Wege
Maxi Pongratz zeigte gestern in der Kinowerkstatt in Wasserburg, wie lustig Melancholie sein kann
Beratungen im Wasserburger „Bürger-Bahnhof“ in der kommenden Woche
Schulbauprojekt des Landkreises in rund 7.000 Kilometer Entfernung abgeschlossen
Am 20. Februar wieder Konzert bei der Jazzinnitiative Wasserburg
Die Öffnungszeiten im Rosenheimer Eisstadion in der kommenden Woche
Schwere Brandstiftung in Bad Endorf: Fall wird bei „Aktenzeichen XY - ungelöst“ vorgestellt
Pfaffinger Räte erkundigten sich gestern nach Baugebiet, „Mitfahrbankerl", Haushalt, Grundsteuer
Erlös aus Christbaumaktion jetzt an regional-engagierten Verein in Ebersberg überreicht
Technikerklassen der FOS/BOS Wasserburg besuchten Sternwarte in Oberreith
Spendenaktion des Innkaufhauses war ein großer Erfolg
Pfaffing unterstützt die Caritas traditionell: Einstimmiger Rathaus-Beschluss gestern Abend
Am Valentinstag: Zweckverband Kommunale Dienste klemmt Rosen an „richtig parkende" Autos
Heimisches Familien-Unternehmen mit 400 Beschäftigten geht beispielhaft voran
Endstation Polizei gestern Nacht für einen 17-jährigen Schüler
Basket-Talent mit dem deutschen Jugend-Nationalteam auf einem Lehrgang
Vereinfachtes Antragsverfahren möglich erleichtertes Verfahren für Berechtigte
Kostenloser Bus zum „Politischen Aschermittwoch" der CSU in Passau
Am Sonntag Jahreshauptversammlung mit Neuwahlen bei der Musikkapelle Griesstätt
Hallenturniere für Nachwuchs-Kicker begeistern Spieler und Zuschauer
Unser Kalenderblatt zum heutigen Freitag - Mit einem Zitat