22.20 Uhr: Wasserburg alarmiert
Floriansjünger rücken in die Nördliche Burgau aus
Floriansjünger rücken in die Nördliche Burgau aus
Montagabend, 21.45 Uhr: Zahlreiche Feuerwehren alarmiert - Schwierige Anfahrt für die Einsatzkräfte
Klangerlebnis mit dem „Beurer CantaRhei“ - Karten im Vorverkauf
Es tut der Seele gut und in der Gemeinschaft noch viel mehr: Chor-Nachmittag in Amerang
Spannender Austausch zur Kleinwasserkraftnutzung bei Rosenheimer Energiedialog
Vier Kommunen im Landkreis haben Gewerbesteuer-Hebesätze nach oben geschraubt
Nächste Woche in Wasserburg: Einen Tag lang wegen des Aufstellens eines Baukrans
Intensiver Trainingslehrgang und Leistungsdiagnostik der Telemark-Nationalmannschaft in Wasserburg
Seniorenbeauftragte aus den Gemeinden zum Austausch im Landratsamt
Förderverein unterstützt Rotkreuz-Zentrum in Feldkirchen im Landkreis: Für wertvolles EKG
Mit dem Wasserburger Fabula - Wieder mit Verlosung - Heute geht es um ein Buch für Liebhaber des Buddhismus
Heute Teil 17 - Marcel Sitz als Zeiss, Tonis ostdeutscher Freund
Angebot mit dem Wasserburger Kneipp-Verein in Rechtmehring
Wasserburger Künstler Rainer Devens zeigt Werke zu verschiedenen Themengebieten
Der etwas andere Ferien-Spaß ab morgens 5 Uhr zur Zeit tagtäglich
Soyener Strickdamen sind am kommenden Mittwoch am Wasserburger Bauernmarkt
Der Polizeibericht zum Schonstetter Unfall gestern Abend - 16-Jährige kam ins Krankenhaus
Marihuana-Party in Wasserburg: Kumpels mit Vergiftungs-Symptom in Kliniken gebracht
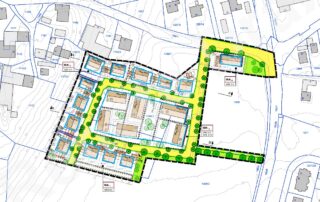
Baupläne bei Meiling: Mehr Doppelhäuser, mehr Einfamilienhäuser? Architekt plant neu
Wohlfühl-Kino nächste Woche: Open-Air-Auftakt in Fichters Biobiergarten in Ramsau
Für die Trainer Christian Haas und Christian Heindl sowie für Team-Betreuer Josef Maier
Acht Podestplätze für die Teams vom MC Wasserburg und AMC Aibling am Wochenende
Marianne Philipp erzählt im BUND-Garten am Magdalenenweg
Einzigartige Klanglandschaften und melodische Eigenkompositionen
Retter aus Wasserburg und Aschau eilten gestern von Unfallort zu Unfallort
Unser Kalenderblatt zum heutigen Montag - Mit Zitat zum Tage