Im Namen der Kinder: Entwurfs-Planung für Pfaffing-West 5 bei Werfling noch mal überarbeitet
Gegen Ende der jüngsten Gemeinderatssitzung gab der Pfaffinger Bürgermeister Josef Niedermeier eine Info zum neuen Baugebiet Pfaffing-West 5 bei Werfling bekannt: Für die Gestaltung eines dort zu planenden Kinderspielplatzes sei er darum gebeten worden, doch auch an das Spiel blinder Kinder zu denken.
Aus diesem Grund sei der Entwurf für den Spielplatz nochmals überarbeitet worden, so Niedermeier.
Dieser sehe nun Folgendes vor: Eine Spielkombination – ein „halbes“ Spielhaus – eine Bank-Tischkombination – eine Stehwippe (Foto) – eine Nestschaukel – eine Rundholzschaukel – ein Klangholz.
Sowohl die Stehwippe, die Nestschaukel sowie das Klangholz seien nach Auskunft der Geschäftsführung von „Spielplatzgeräte Maier“ aus Altenmarkt für Inklusion geeignet, sagte der Bürgermeister.
Hintergrund-Info:
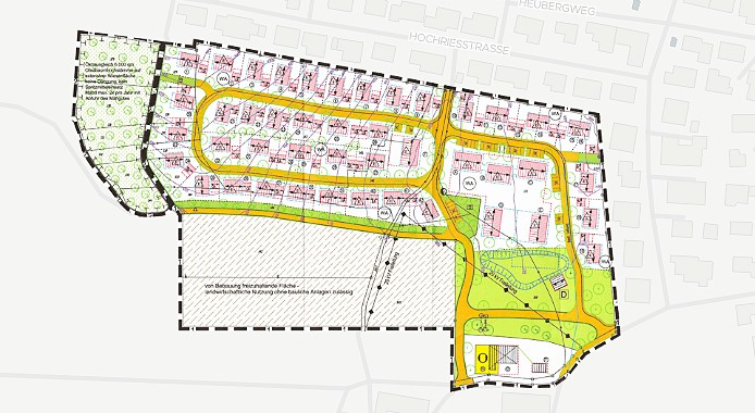
Das Baugebiet Pfaffing-West 5 befindet sich am südwestlichen Ortsrand von Pfaffing und wird im Norden von der bestehenden Bebauung der Hochriesstraße und im Osten von der Kampenwandstraße eingerahmt. Im Süden befindet sich mit etwas Abstand der landwirtschaftlich-geprägte Ortsteil Werfling, nach Westen steigt das Gelände an und gibt einen freien Blick in die „Filzen“ frei.
Im April 2023 – also vor knapp zwei Jahren – wurden die Straßennamen für das Baugebiet festgelegt. Passend zur bisherigen Namensgebung in diesem Bereich von Pfaffing erhielten die neuen Straßen Bergnamen: So wurden unter anderem die „Kranzhornstraße“, die „Karwendelstraße“, die „Hochstaufenstraße“ und die „Sagbergstraße“ benannt.
Der Bebauungsplan „Pfaffing-West 5“ war im vergangenen Jahr Gegenstand einer Klage vor dem Bayerischen Verwaltungsgerichtshof. In einer mündlichen Verhandlung Ende Juli 2024 wurde die Klage von den Klägern jedoch vollständig zurückgenommen, womit der Bebauungsplan nun unanfechtbar ist.
Seit November 2024 sei das Vermessungsamt Wasserburg vor Ort, um die Grundstücke und Bauparzellen exakt einzumessen. Sobald diese Ergebnisse vorliegen würden und die Erschließungs-Arbeiten abgerechnet seien, könne der Grundstückspreis (€/m²) ermittelt werden. Das hieß es – wie berichtet – in der Februar-Sitzung.
Laut Planung sollen nun im Frühjahr die Eingrünungs-Maßnahmen wie Baum- und Strauchpflanzungen sein, da dies ein optimaler Zeitpunkt für diese Arbeiten ist. Informiert wurde darüber nicht in der jüngsten Sitzung. Auch nicht, wann denn nun die Regularien für die Vergabe der Grundstücke im Gemeinderat beschlossen werden.
Erst nämlich, sobald diese Regularien sowie der Grundstückspreis festgelegt sind, kann die Bewerbung der Interessenten für die Grundstück-Parzellen des neuen, großen Pfaffinger Baugebietes starten …
Entstehen sollen dort 34 Einfamilienhaus-Parzellen und acht Parzellen für Doppelhaushälften – sowie zudem sechs große Mehrfamilienhäuser. Siehe den untenstehenden Plan.
Foto ganz oben: Spielplatzgeräte Maier
Schaufenster



Eine Frage: Wieviele Grundstücke sind für Einheimische im gesamten Bebauungsplan festgelegt?