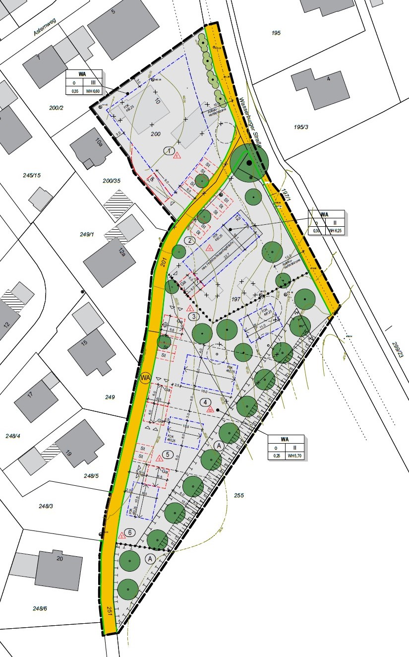
Durch Eiselfinger Gemeinderat auf den Weg gebracht - Lage in Südwest

Unter dem Titel „Bebauungsplan Bachmehring-Südwest“ sieht der durch die Verwaltung vorgelegte Entwurfsplan eine Parzelle mit der Möglichkeit für einen Geschosswohnungsbau mit drei Vollgeschossen sowie einer Tiefgarage vor.
Darüber hinaus sollen drei Parzellen für Einfamilienhäuser, eine Parzelle mit Einzel- oder Doppelhausbebauung sowie eine Parzelle als Ersatzbau einer bestehenden Hofstelle entstehen.
Der erforderliche, naturschutzrechtliche Ausgleich kann direkt im Plangebiet dargestellt werden.
Bezüglich der Erschließung ist eine Einbahnstraße aus Richtung der Wasserburger Straße, einmündend in den Asternweg, vorgesehen. Die Einbahnregelung ergibt sich aus dem Sachverhalt, dass an der Einmündung von der Wasserburger Straße ein dauerhaft zu erhaltender Baumbestand kartiert worden ist.
„Im Zuge des Bebauungsplans wird in diesem Gebiet anteilig auch Bauland für das Einheimischen-Modell der Gemeinde Eiselfing entstehen“, gab Bürgermeister Georg Reinthaler bekannt.
Der Gemeinderat beauftragte die Verwaltung mit der Durchführung des weiteren Verfahrens, nach welchem nun die Behörden und sonstigen Träger öffentlicher Belange sowie die Öffentlichkeit zu beteiligen sind.
Schaufenster

Hinterlassen Sie einen Kommentar