Bayrisch wohnen: In Kerschdorf in der Gemeinde Eiselfing entstehen gerade neue Mehrfamilienhäuser

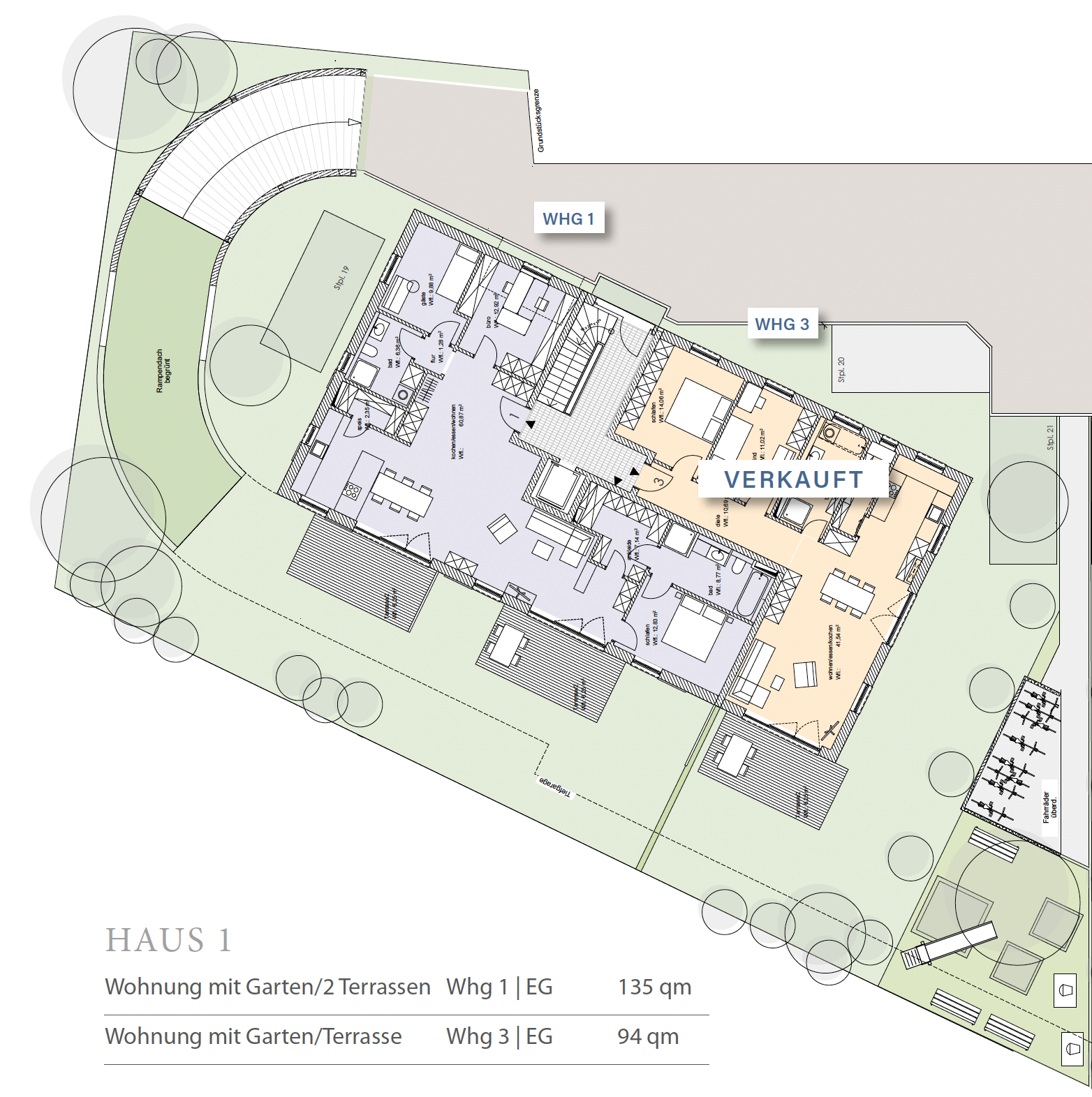
Umso erfreulicher, wenn dank richtiger Kalkulation die Baukosten und damit Verkaufspreise niedrig gehalten werden können – und das bei hoher Qualität und dem Einsatz ausschließlich regionaler Handwerker. Und dass diese gut vorankommen, sieht man daran, dass bereits der erste Meilenstein in der Bauphase gelegt wurde: Die aufwendigen Tiefbauarbeiten mit Keller und Tiefgarage sind abgeschlossen. Nun geht es mit Hochdruck ans Mauern, damit bereits Ende des Jahres die ersten einziehen können. Besonders attraktiv dürfte die großzügige Gartenwohnung sein, denn mit über 130 Quadratmetern Wohnfläche, riesigem Garten und zwei Terrassen kann man schon fast von einem „Haus im Haus” sprechen, und das zu einem unschlagbaren Preis. Informationen gibt es bei BURGERS am Heisererplatz 3 in Wasserburg oder Bayrisch Wohnen (www.bayrisch-wohnen.de).
Bayrisch Wohnen GmbH
Häuser fürs Leben – nach diesem Grundsatz arbeitet die Bayrisch Wohnen GmbH von Rosenheim aus nun schon seit über 40 Jahren in zweiter Generation. Das Team steht Interessenten zur Seite, wenn es um deren Immobilie geht: Verkauf, Vermietung, Baubetreuung – man kann auf einen einen zuverlässigen Partner mit jahrzehntelanger Erfahrung vertrauen.

Schaufenster


Hinterlassen Sie einen Kommentar