Wie detailliert Pläne im Rathaus erarbeitet werden müssen: Beispiel Gewerbegebiet Forsting
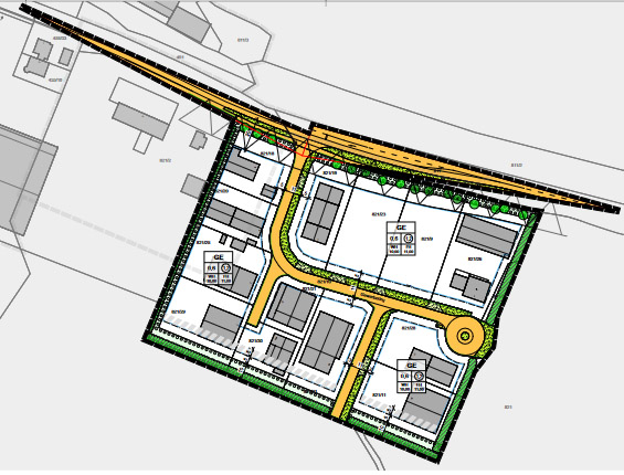
Der Entwurf zur 4. Änderung des Bebauungsplans „Forsting – Gewerbegebiet Südost“ – an der B304 am Ortsausgang rechts Richtung Wasserburg gelegen – wurde jetzt im Pfaffinger Gemeinderat einstimmig als Satzung beschlossen. Einschließlich der zuvor in der Sitzung beschlossenen, redaktionellen Anpassungen … Das Ergebnis aus der Beteiligung der Behörden und sonstigen Träger öffentlicher Belange war dazu entsprechend von Bauamtsleiter Martin Niedermeier detailliert präsentiert worden.
Ziel der Änderung war es gewesen, dass man
· die bis dato generell zugelassenen Betriebsleiter-Wohnungen nur noch ausnahmsweise zulässt,
· die sogenannten Vergnügungsstätten zukünftig nicht mehr ausnahmsweise zulässt, sondern nun generell ausschließt,
· die derzeit allgemein zulässigen Beherbergungsbetriebe und Wohnheime zukünftig generell nicht mehr zulässt.
Im Rahmen der öffentlichen Auslegung nun waren von Bürgerseite keine Stellungnahmen eingegangen, sagte Bürgermeister Josef Niedermeier in der Sitzung.
Von allen Behörden und Trägern öffentlicher Belange haben nur einige ihre Hinweise zur Planung vorgebracht:
Das Amt für Digitalisierung, Breitband und Vermessung hat angemerkt, dass bei der Vermessung des Forstinger Gewerbegebietes im Jahr 2008 einige Grenzpunkte aufgrund der angrenzenden Kiesgrube nicht abgemarkt worden seien. Einstimmig beschloss der Gemeinderat in Pfaffing nun, sofern eine Abmarkung gewünscht werde oder notwendig sei, werde die Gemeinde einen Vermessungsantrag stellen.
Das Amt für Ernährung, Landwirtschaft und Forsten wiederum gab zu beachten, dass zu den Gebäuden am Ostrand des Gewerbegebietes, die dem dauerhaften Aufenthalt von Personen dienen (Betriebsleiter-Wohnungen), lediglich etwa sieben bis 15 Meter Abstand zum dortigen Wald gegeben seien. Hier könne eine Baumwurf-Gefahr, die ja etwa 25 Meter betrage, ausgehen.
Außerdem fehle in großen Teilen die im Plan geforderte Eingrünung des Forstinger Gewerbegebiets-Randes.
Der Gemeinderat fasste dazu dann einstimmig den Beschluss, diesen Text mitaufzunehmen: „Aufgrund der Nähe des angrenzenden Waldes kann ein Schaden durch Baumwurf oder Astbruch nicht ausgeschlossen werden. Bei Gebäuden, die weniger als 25 Meter von der Waldgrenze entfernt sind, ist die Dachkonstruktion so zu dimensionieren, dass im Falle umstürzender Bäume oder Astbruch ein Personenschaden ausgeschlossen ist.“
Das Landratsamt Rosenheim erklärte unter anderem, dass eine Rechtsgrundlage für eine grundstücks-größenbezogene Grenzanbau-Möglichkeit nicht gegeben sei.
Hier beschloss der Gemeinderat, dass die Festsetzung zur Möglichkeit des einseitigen Grenzanbaus ab einer Mindestgrundstücksgröße von 1.500 m2 unverändert aus dem rechtskräftigen Bebauungsplan übernommen worden sei. Das Baugebiet sei zudem mittlerweile vollständig bebaut oder die Bebauung sei im Gange. Dabei sei die Möglichkeit des beiderseitigen Grenzanbaus auf einer Grundstücksseite gar nicht in Anspruch genommen worden.
Bei Grundstücksgrößen unter 1.500 qm sei nun ganz grundsätzlich also ein einseitiger Grenzanbau dann möglich, wenn auch das Nachbargebäude auf einem Grundstück unter 1.500 qm an diese Grundstücksgrenze angebaut werde. Die beiden Gebäude seien dann in Gestaltung, Dachneigung, Material und so weiter aufeinander abzustimmen. Diese Regelung gelte jedoch nur für eine Seite pro Grundstück.
Dieser Beschluss wurde mit einer Gegenstimme von ÜWG-Gemeinderat Sepp Reich gefasst.
Wie genau das Durcharbeiten des Plans erfolgt, wird aus Nachfolgendem deutlich:
Werbeanlagen müssen ausnahmsweise zugelassen werden: Hier fragte das Landratsamt, was soll das Müssen hier bedeuten …
Bei der Sitzung in Pfaffing hieß es nun dazu, die Wortwahl sei aus dem rechtskräftigen Bebauungsplan übernommen worden. Diese sei allerdings tatsächlich unverständlich. Das Wort müssen werde nun durch das Wort können ersetzt …
Zudem heißt es in der Stellungnahme vom Landratsamt – übrigens aktuell bei allen entsprechenden Stellungnahmen auch anderer Pläne:
Der Verfahrensvermerk zur Öffentlichkeitsbeteiligung müsse – nach geänderter Gesetzeslage aus dem vergangenen Jahr – der Internet-Beteiligung entsprechend umformuliert werden.
Einstimmig beschloss der Gemeinderat in Pfaffing das: Die Verfahrensvermerke sind der aktuellen Rechtslage anzupassen. Es muss ab sofort heißen: Im Internet veröffentlicht statt öffentlich bekanntgemacht …
Sehr detailliert hat sich die Untere Naturschutzbehörde des Landratsamtes zu dem Plan des Forstinger Gewerbegebietes geäußert. Der letztendlich einstimmig gefasste Beschluss dazu des Gemeinderates in Pfaffing macht das im Detail deutlich. Er sieht wie folgt aus:
In der 4. Änderung des Bebauungsplans wurde der rechtskräftige Bebauungsplan samt den bisherigen Änderungsplänen ohne weitere Änderung nachrichtlich übernommen, um anschließend einen aktuellen Planstand zu haben, ohne die verschiedenen Änderungspläne zur Hand nehmen zu müssen.
Die grundsätzlich abgeschlossene Planung zur Grünordnung und zu den Ausgleichsflächen sollte durch die 4. Änderung auch nicht verändert werden.
Dennoch können redaktionelle Ergänzungen und Korrekturen vorgenommen werden.
– Der Hinweis zum Ausschluss der Förderung nach dem Kulturlandschaftsprogramm wird zur Kenntnis genommen.
– Der Hinweis zum Gehölzschutz wird in die Satzung übernommen.
– Das grundsätzliche Einverständnis zu den geänderten Nutzungen wird zur Kenntnis genommen.
– Der rechtskräftige Bebauungsplan trifft keine Regelung zum Straßen-Begleitgrün – er setzt jedoch zwischen Straßenbegrenzungslinie und den überbaubaren Grundstücksgrenzen auf den privaten Baugrundstücken Laubbaum-Pflanzungen fest, die in den Straßenraum wirken. Diese Bäume sind auch in der 4. Änderung darzustellen.
– Die Festsetzung zur Bepflanzung ist an sich nicht Gegenstand der 4. Änderung. Die Pflanzdichte ist mit einem Baum je 500 m2 Grundstücksfläche seit 2008 im rechtskräftigen Bebauungsplan festgesetzt und so Grundlage für die Bebauung der Grundstücke im Geltungsbereich gewesen. Für künftige bauliche Neuentwicklungen auf einzelnen Grundstücken nun eine höhere Pflanzdichte zu fordern, würde wohl kaum zu einem nennenswerten Gewinn für die Begrünung des Gesamtquartiers führen. Die Festsetzung soll deshalb beibehalten werden.
– Die Festsetzung zur Durchgrünung wurde im Rahmen der 3. Änderung des Bebauungsplans gestrichen.
– Die fehlenden Bemaßungen sind nachzutragen.
– Die Breite und Bepflanzung der Randeingrünung der westlichen Grundstücke ist nicht Gegenstand der 4. Änderung. Eine Umsetzung der Forderung nach breiterer Strauch-Pflanzung auf den seit Jahren bebauten Grundstücken ist nicht realistisch.
– Die Gemeinde wird sich in Abstimmung mit dem Landratsamt um eine Einhaltung der grün-ordnerischen Festsetzungen durch die Grundstückseigentümer bemühen.
– Der Schreibfehler bei 10.1 wird berichtigt.
– Ein Passus bei den grün-ordnerischen Festsetzungen bezüglich Erziehungs- und Pflegeschnitten, Verbiss-Schutz bei Obstgehölzen wird als nicht zielführend gesehen. Eine Ergänzung soll nicht erfolgen.
– Die Flurnummer wird bei 11.1 ergänzt.
– Unter 11.2 werden die Grenzen der berührten, amtlich kartierten Biotopflächen nachrichtlich in der Planzeichnung ergänzt.
– Der entbehrliche Nebensatz mit Verweis auf den Landkreis wird gestrichen.
– Tatsächlich soll es hier „Bewaldung“ heißen. Der Schreibfehler wird berichtigt.
– Die Festsetzung ist seit 2011 rechtskräftig (3. Änderung) und wird hier lediglich nachrichtlich übernommen. Eine Konkretisierung zur Herstellung eines Laubwaldes ist entbehrlich.
– Die Gemeinde wird darauf hinwirken, dass die Fläche gemäß Festsetzung als artenreiche Blumenwiese gepflegt wird. Für die Planung ist keine Änderung erforderlich.
– Die Festsetzung stammt von 2011. Die Aushagerung sollte mittlerweile erfolgt sein. Das Datum in der Festsetzung kann dennoch vom 01.07. auf 15.06. verlegt werden.
– Das Planzeichen für den Strauchgürtel wird ergänzt, ein Beschrieb zur Herstellung hinzugefügt.
– Die Festsetzung zum Grabenunterhalt wird gemäß der Anregung ergänzt.
– Unter 7. wird ergänzt, dass neue Einfriedungen mit mindestens 15 cm Sockel- und Bodenfreiheit zu errichten sind.
Schaufenster


Hinterlassen Sie einen Kommentar