In Perfall in der Gemeinde Eiselfing soll ein Solarpark entstehen - Gemeinderat stimmt dem Vorhaben zu
Der Gemeinderat stimmte dem hierfür erforderlichen Bebauungsplan in seiner jüngsten Sitzung einstimmig zu. Somit kann es detaillierte Planungen für den Solarpark in Perfall geben.
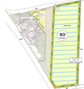
Auf einer Fläche neben dem dortigen Gasthaus möchte die Antragstellerin auf knapp 1,5 Hektar Freiflächen-Photovoltaikanlagen zur regenerativen Stromerzeugung installieren. Die maximale Höhe der in Reihen aufgestellten Module beträgt drei Meter, deren Ausrichtung erfolgt nach Süden.
Als Gesamtleistung für die künftige Anlage werden etwa 1,9 Megawatt Peak angegeben.
Erforderliche ökologische Ausgleichsflächen für das Sondergebiet zur Erzeugung regernativer Energie können größtenteils auf dem Grundstück selbst angelegt werden. Die kurze Anbindungsmöglichkeit an das bestehende Stromnetz ist direkt im Ortsteil Perfall gegeben.
„Nach Rücksprache zwischen der Antragstellerin und der Gemeinde Eiselfing im Vorfeld wird es für interessierte Bürger ein Modell zur finanziellen Beteiligung an der Anlage geben“, berichtete Bürgermeister Georg Reinthaler.
Im Zusammenhang mit dem neuen Bebauungsplan sprach sich der Gemeinderat ebenfalls ohne Gegenstimmen dafür aus, den kommunalen Flächennutzungsplan um den künftigen Solarpark zu ergänzen.
Gemeinde Eiselfing
Schaufenster


Hinterlassen Sie einen Kommentar